
The different areas of life - living, working, leisure, commerce and transport - must be coordinated with one another, and the different interests of private and public developers must be weighed up and organized in terms of urban development.
In order to achieve high-quality urban development in the city, informal instruments such as planning workshops, framework plans and urban development studies are used in addition to the planning instruments required by law, such as the land use plan and development plans.
In addition to drawing up development plans as part of the housing offensive, the urban planning department is also responsible for developing concepts, such as the Nordkopf master plan, which is intended to accompany its development. The employees also oversee the upgrading of district centers such as Fallersleben or Vorsfelde and the redevelopment of existing districts such as the craftsmen's quarter in the city centre.

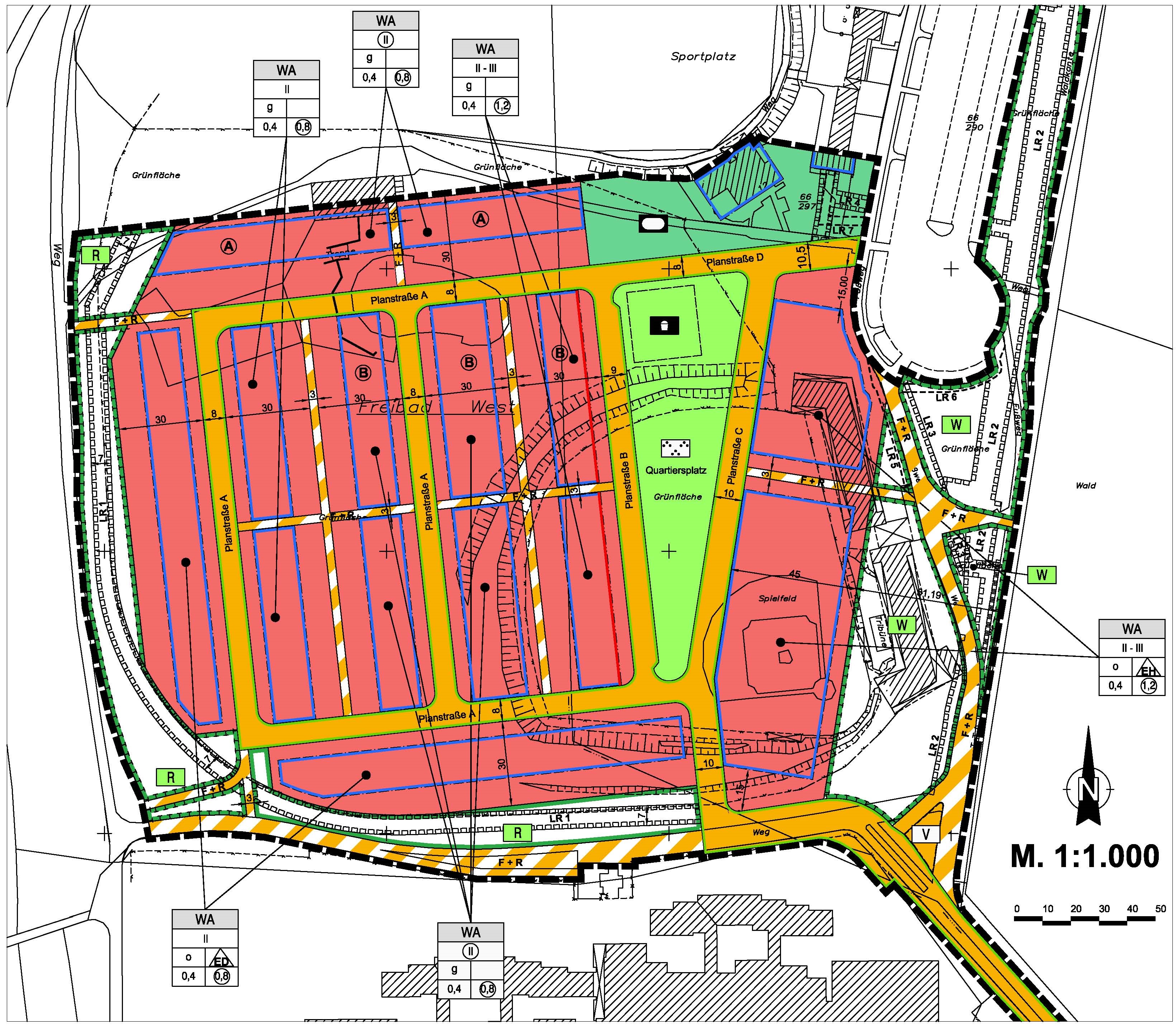
The term "urban land-use plans" covers both the land-use plan and the development plan. While the land use plan is a preparatory urban land-use plan, the development plan is a binding, legally binding urban land-use plan following a decision by Wolfsburg City Council.
On the following pages, we will inform you about the urban land-use planning procedure, the current development plans and public participation in accordance with the German Building Code and the land-use plan.
The urban land-use planning procedure and current development plans
Some districts or neighborhoods no longer meet today's requirements and are in need of urban renewal. The aim of urban renewal is to upgrade public spaces, optimize traffic areas and improve the image of the neighbourhoods in order to strengthen residents' identification with their surroundings in the long term.
Current redevelopment areas in the city of Wolfsburg are the craftsmen's quarter in the city center, the "Socially Integrative City" project in Westhagen and the courtyards in the city center and Detmerode.
The urban planning department prepares and commissions studies and investigations into the history of specific areas in the city. This also includes the project development of the two large urban housing projects Hellwinkel and Nordsteimke.
Furthermore, competition procedures are initiated and supported, in some cases together with housing associations and private developers. In important urban development areas such as the Nordkopf, investor projects are also supported from the planning stage through to implementation.